kids museum
01_リサーチ
02_ダイアグラム
03_平面図
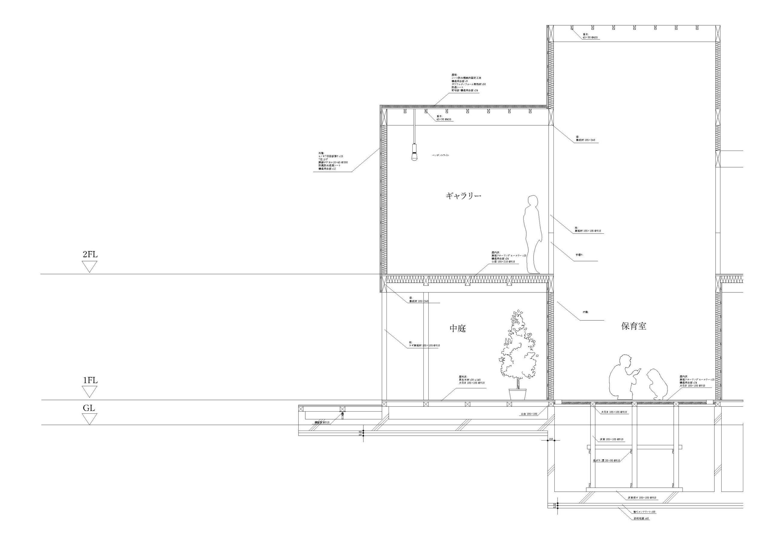
04_断面図
05_立面図
06_部分詳細図
07_設備図
kids museum
01_リサーチ
02_ダイアグラム
03_平面図
04_断面図
05_立面図
06_部分詳細図
07_設備図